Domy

SPRZEDAŻ DOMÓW W POBIEROWIE ZOSTAŁA ZAKOŃCZONA

Aktualna inwestycja obejmowała budowę 33 domów w Pobierowie z działkami o powierzchniach od 240 do 390 m2. łączna powierzchnia pomieszczeń w domu to ok. 75m2.

 

Całe osiedle  jest oświetlone, ogrodzone i monitorowane. Wokół ogrodzenia zostały nasadzone tuje szmaragd, które dodatkowo zapewnią nowym nabywcom swobodę i intymność. Na osiedle wjadą Państwo przez bramę sterowaną pilotem, a wejdziecie przez furtkę z domofonem. Na każdej posesji przewidziano miejsca parkingowe.

Wszystkie domy z poprzednich etapów szybko znalazły nowych właścicieli. Budynki powstały z materiałów najwyższej jakości. Ściany murowane w nowoczesnej ekologicznej technologii z cegły silka, ocieplone i otynkowane. Dodane elementy klinkierowe tworzą ciekawą architekturę, a duże okna doskonale oświetlają wnętrze domu. Całość połączona z drewnianym tarasem – idealnym miejscem do spotkań z przyjaciółmi i grillowania na świeżym powietrzu.

 

Idea Szczecin:
Idea Szczecin:

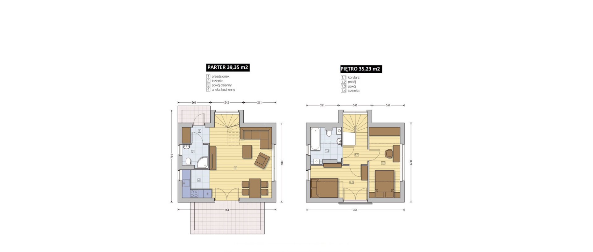
Funkcjonalność i ergonomia

Domy zaprojektowano zwracając szczególną uwagę na ich funkcjonalność i ergonomię, przez co sprawiają wrażenie dużo większych. Na parterze mieszczą się pomieszczenia dzienne: salon, aneks kuchenny, łazienka i przedsionek. Z salonu drewniane schody prowadzą na piętro, gdzie znajdują się dwa pokoje, korytarz i duża łazienka. W całym domu zainstalowano ogrzewanie podłogowe. Obie łazienki wykończono w gresie polerowanym. Zamontowano armaturę wysokiej jakości. Funkcjonalną kuchnię zabudowano na wymiar i wyposażono w firmowy sprzęt AGD. Domy wykończone w wysokim standardzie dostępnym wyłącznie dla domów segmentu premium. Poniższy rzut przedstawia łączną powierzchnię pomieszczeń.

 

/media/1920/domy/20220126_184422_678410.jpg

STANDARD WYPOSAŻENIA DE LUXE

drzwi zewnętrzne drewniane Barański
drzwi wewnętrzne Barański
instalacja centralnego ogrzewania z piecem gazowym Junkers
ogrzewanie podłogowe w całym domu
instalacja wodno-kanalizacyjna
instalacja elektryczna wraz z włącznikami i gniazdkami ( Legrand )
instalacja RTV SAT
instalacja alarmowa ( opcja informowania właściciela oraz ochrony o alarmach) instalacja domofonu
ściany gładzone i pomalowane na pastelowe kolory farbami Flugger
gres w holu, łazienkach, kuchni oraz w salonie, cokoły zlicowane ze ścianą

3 szybowe okna
podłogi w pokojach wykończone panelami wysokiej klasy
stolarka okienna w kolorze grafit (ukryte okucia)
drewniane schody
kuchnia zabudowana na wymiar z firmowym sprzętem AGD
dwie łazienki z armaturą wysokiej jakości
dachówka ceramiczna Creaton (Niemcy)
tynk zewnętrzny silikonowy + elewacja klinkierowa
zewnętrzny taras drewniany
anteny RTV/SAT
trawa z rolki
ogród wykończony kostką granitową i grysem

/media/1920/domy/20220126_185047_270858.jpg